Bản lề xoay 180 độ cửa kính thì có thể thấy đây là loại bản lề chuyên dùng cho loại cửa cabin phòng tắm mở quay. Đây là loại cửa khá thông dụng và tiện loại cho làm vách ngăn phòng tắm.
Bản lề xoay 180 độ cửa kính
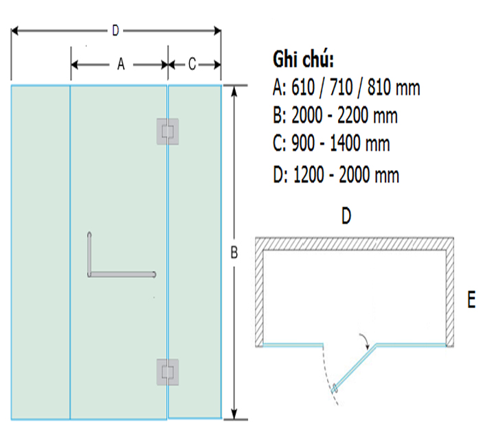
Đây là loại bản lề được lắp vào vị trí cánh cửa kính và vách kính. Vách kính và cánh cửa kính thẳng hàng với nhau tạo lên góc 180 độ.
Bản lề cửa kính loại này cũng giúp cho cánh cửa có thể mở được góc mở tối đa lên tới 180 mà vẫn đảm bảo tính năng hoạt động kính được chơn chu kín khít.
Bản lề xoay 180 độ cửa kính nhà tắm
Bản lề 180 giúp giữa cho cánh cửa kính được liên kết với cánh chắc chắn cố định hơn.
Khác với bản lề của cửa nhôm, cửa nhựa ở chỗ bản lề 180 muốn lắp được vào kính thì cả ở cánh cửa và vách cần khoan 1 lỗ nhỏ có độ rộng bằng với ốc trên bản lề. Bản lề 180 sẽ được lắpvào cánh và vách sau đó sẽ cố định bằng ốc vít để bản lề được siết chặt với kính.
Bản vẽ cửa kính cường lực bản lề 180 độ
Ưu điểm của vách kính cường lực sử dụng bản lề xoay 180 độ
Giúp cho không gian nhà tắm có được sự liền mạch giữa các tấm kính.
Diện tích phòng tắm không bị chia nhỏ mà vẫn tạo được sự ngăn cách giữa khu vực ẩm ướt và khô thoáng giúp nhà tắm luôn sạch sẽ.
Sử dụng vách kính thẳng là biện pháp tối ưu và hiệu quả nhất đối với diện tích không gian nhà tắm chặt hẹp.
Không khí trong nhà tắm cũng được điều hòa, mùa đông thì kín khít ấm ấm, mùa hè thì mát mẻ.
>>> Xem thêm về giá cửa nhựa cao cấp upvc lõi thép hàng chất lượng mẫu mã đa dạng




