Cầu thang xoắn rất được ưu chuộng hiện nay bởi tính thẩm mỹ và những ưu điểm mà nó đem lại. Thiết kế cầu thang xoắn phức tạp hơn cầu thang truyền thống, đòi hỏi sự tỉ mỉ, chính xác và an toàn. Bạn có thể tham khảo các mẫu thiết kế bản vẽ kết cấu cầu thang xoắn sau đây.
Bản vẽ cad cầu thang xoắn ốc
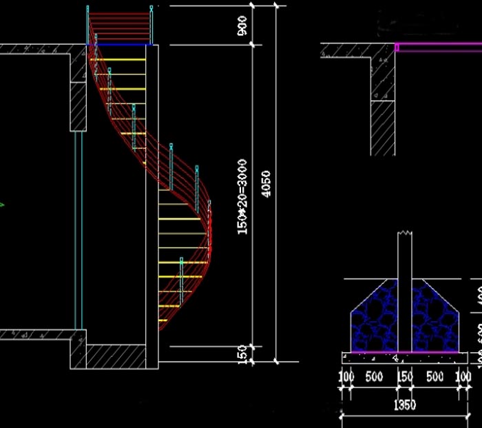
Cầu thang xoắn ốc thực chất là cầu thang xoắn theo hình con ốc. Cầu thang xoắn ốc có thể được làm bằng inox, gỗ,… Kiểu cầu thang này rất độc đáo và có sức hấp dẫn cao do hình dạng và các đường nét được uốn cong mềm mại.Kiểu cầu thang này rất đẹp và tiết kiệm phần lớn không gian cho ngôi nhà. Cầu thang này chủ yếu được thiết kế xoay quanh một trục trung tâm hoặc trục đơn, đem lại cho bạn cảm giác thoải mái. Bạn có thể tham khảo bản vẽ cầu thang xoắc ốc sau
Bản vẽ bậc cầu thang

Bản vẽ cad cầu thang xoắn ốc


Bản vẽ cad cầu thang xoắn ốc

Thư viện cad cầu thang xoắn
Cầu thang xoắn có thể làm được từ rất nhiều nguyên liệu khác nhau như đá cẩm thạch tạo không gian cao, gỗ tạo cảm giác ấm áp nhẹ nhàng, bê tông với tay vịn bằng thuỷ tinh; kết hợp dùng thép và gỗ ở tay vịn; kết hợp thép và đá cẩm thạch.Hiện nay, cầu thang xoắn được làm bằng kính cường lực là sản phẩm rất được ưu chuộng bởi sự độc đáo, mới lạ và đem lại không gian thông thoáng, tạo sự sang trọng cho ngôi nhà.
Kính cường lực làm bậc cầu thang xoắn

Cầu thang xoắn


Cầu thang xoắn

Bố trí thép cầu thang xoắn
Khi đặt cốt thép cho cầu thang cần phải tuân thủ nguyên tắc: Các mặt chặn trước và chặn sau có thể là mặt phẳng hoặc mặt cong đều được nhưng phải được cắt nhau bởi mặt chủ chứa cốt thép.Một số điều cần biết khi thiết kế cầu thang xoắn
Khi thiết kế cầu thang cho những ngôi nhà không khí lưu thông không tốt nên dùng cầu thang xoắn ốc để giúp luồng khí lưu thông mạnh, chuyển động liên tục. Tuy nhiên lượng khí vào các phòng sẽ không giống nhau.
Với không gian diện tích nhỏ, để tiết kiệm chi phí thì sử dụng cầu thang xoắn ốc có 1 trục.
Độ rộng của khoang cầu thang phải đảm bảo đường kính đạt từ 1,5m đến 2m, nếu khoang quá chật sẽ tạo cảm giác khó chịu.
Nên đặt chậu cảnh ở chân cầu thang để hút khí.
Havaco cung cấp lắp đặt cầu thang kính cường lực chất lượng cao, giá thành cạnh tranh.




