Bạn muốn xây nhà và cần dự trù kinh phí xây nhà hai tầng để chuẩn bị tiền bạc và vật tư các loại, để giải đáp các thắc mắc của mình hãy tham khảo bài viết dưới đây của chúng tôi để có các thông tin chính xác.
Thiết kế xây dựng nhà 2 tầng đang trở thành xu hướng thiết kế hiện nay được nhiều gia đình lựa chọn. Với mỗi thiết kế khác nhau thì chi phí cũng có sự thay đổi. Nhiều gia chủ vẫn luôn băn khoăn và thắc mắc về chi phí xây sẽ trong khoảng bao nhiêu để dự phòng trước chi phí.Chi phí xây nhà hai tầng 40m2, 50m2, 60m2
Xây nhà là một trong những việc hệ trọng trong cuộc đời mỗi người. Đây là không gian để các thành viên trong nhà làm việc, nghỉ ngơi, thư giãn và sinh hoạt với nhau nên cần được xây dựng và tính toán cụ thể. Mỗi không gian riêng sẽ được bày trí sao cho phù hợp với từng thành viên và công năng cụ thể của căn phòng.Rất khó để dự trù chính xác được chi phí để xây dựng một căn nhà bởi với mỗi diện tích khác nhau sẽ có một mức chi phí riêng, bởi tổng chi phí phải dựa trên chi phí của phần móng và các tầng trong nhà, bên cạnh đó mỗi loại mái, diện tích cửa, vật liệu làm cửa cũng có giá thành riêng biệt nên tùy đặc điểm cụ thể của mỗi ngôi nhà mà sẽ có một cách tính chi phí riêng.
Một số yếu tố quyết định đến chi phí của ngôi nhà mà gia chủ cần quan tâm nhất là vị trí mảnh đất của căn nhà, diện tích bao nhiêu để phân chia bố trí các khu vực sinh hoạt cho phù hợp. Vật liệu xây dựng nên sử dụng loại nào đảm bảo được độ an toàn và dựa trên tình hình tài chính của gia đình.
Những lưu ý bạn cần biết để xây dựng nhà 2 tầng tiết kiệm chi phí không tốn kém
Để xây dựng nhà 2 tầng tiết kiệm chi phí nhất, bạn cần phải đặc biệt lưu ý đến một số vấn đề sau
Thiết kế kiến trúc
Chính là bộ mặt cho toàn bộ ngôi nhà của bạn. Tuy nhiên, thiết kế cũng ảnh hưởng rất lớn đến giá trị cũng như mức chi phí bạn phải bỏ ra. Đây là điều đáng lưu tâm cho những người muốn xây nhà giá rẻ.
Một trong những cách xây nhà 2 tầng tiết kiệm nhất là hãy thiết kế bên trong thật khoa học. Tận dụng các bức tường, các chi tiết nhỏ nhất để hỗ trợ chi tiết khác.
Cùng với diện tích đất 50m2 đều xây dựng nhà 2 tầng. Nếu thiết kế kiến trúc phù hợp sẽ giúp tiết kiệm rất nhiều, không thì chi phí sẽ bị đội lên.
Ví dụ: Bạn có thể tận dụng khoảng không gian bên chân cầu thang để làm bàn tiếp khách. Đây là cách vừa không để phí phần mép cầu thang, vừa tạo cảm giác ấm áp, thân thiện.
Càng tận dụng tốt không gian từ thiết kế, càng ít chi tiết thừa, thì chi phí cũng như thời gian thi công sẽ được rút ngắn. Đặc biệt, nếu chịu khó sáng tạo, nghiên cứu các kiểu sắp xếp nội thất, thiết kế kiến trúc thì sẽ giúp cho bạn xây nhà tiết kiệm nhất.
Ngoài ra, mạng internet luôn là công cụ hỗ trợ đắc lực trong việc kiểm tra chất lượng, giá thầu trọn gói…
Đáng lưu ý nhất là hãy giao kèo, bàn bạc thật kỹ từng chi tiết với nhà thầu hoặc công ty xây dựng. Đây là khâu quan trọng ảnh hưởng đến chi phí phát sinh sau này, và là điểm mấu chốt trong việc xây nhà tiết kiệm chi phí.
Tốt nhất, nên có hợp đồng giao dịch rõ ràng để tránh ảnh hưởng về sau.
Thời điểm xây dựng
Trong xây dựng, người ta cũng thường phân chia theo mùa. Mùa xây dựng chính bắt đầu từ 3 tháng cuối năm này kéo dài đến hết 3 tháng đầu năm sau tính theo âm lịch.
Đây được xem là thời điểm vàng bởi thời tiết lúc này thuận lợi, mùa khô, ít mưa, không ảnh hưởng đến tiến độ thi công và chất lượng công trình xây dựng.
Nhà thầu xây dựng
Một nhà thầu uy tín về giá cả, công nhân cũng như thời gian thi công là điều tuyệt vời nhất mà người xây nhà muốn có. Nếu muốn xây nhà tiết kiệm, hãy đặc biệt chú ý đến vấn đề này.
Việc tìm kiếm nhà thầu là điều vô cùng quan trọng. Nếu bạn không có quan hệ trong ngành này, hãy tham khảo từ những người đã xây nhà trước đó.
Nếu bạn xây nhà ngoài 6 tháng này, thì được gọi là trái mùa. Nắng lắm, mưa nhiều từ đó làm tiến độ công trình bị chậm, kết cấu có thể không đảm bảo do ảnh hưởng thời tiết. Đồng thời chi phí đầu tư có thể bị đội do xuất hiện nhiều chi phí phát sinh.
Xây nhà đúng mùa là điều thuận lợi, tuy nhiên vì vào mùa xây dựng cầu nhiều hơn cung do đó giá nguyên vật tư, nhân công đều tăng, nên sẽ tác động đến đơn giá xây dựng của các công ty, từ đó dẫn đến chi phí xây nhà 2 tầng của bạn cũng sẽ tăng.
Bạn hãy xem ngay bảng báo giá cửa kính cường lực với giá ưu đãi hấp dẫn nhất Hà Nội hiện nay giúp tiết kiệm chi phí cho ngôi nhà bạn

Vị trí thi công
Vị trí thi công cũng sẽ quyết định một phần đến số tiền mà bạn sẽ bỏ ra để xây nhà. Cùng một thiết kế và diện tích, nhưng xây nhà ở thành phố sẽ tốn kém hơn nhiều so với ở nông thôn.
Ngoài ra, nếu xây nhà trong ngõ hẻm bạn sẽ phải thêm chi phí về vận chuyển, nhân công hơn so với xây dựng ngôi nhà mặt phố.
Do đó, vị trí thi công sẽ quyết định không nhỏ đến chi phí xây dựng từ giá nhân công, giá vật liệu cho đến thời gian xây.
Ngoài ra, vị trí địa lý còn liên quan tới chất đất. Chẳng hạn, nếu xây nhà ở nơi có nền đất yếu đòi hỏi bạn phải tốn kém gia cố xây dựng phần chân móng nhiều hơn so với đất tốt, đất thổ cư.

BẢNG TÍNH VẬT TƯ CHI TIẾT XÂY NHÀ 2 TẦNG 50M2
Nếu đang có ý định xây nhà 2 tầng 50m2 thì bạn có thể tham khảo bảng tính vật tư dưới đây của chúng tôi:
|
TT |
Vật tư |
Tổng |
Đơn vị |
Đơn giá |
Thành tiền (VNĐ) |
|
1 |
Cát mịn |
57,62 |
M3 |
120.000 |
6.914.400 |
|
2 |
Cát vàng |
24,04 |
M2 |
150.000 |
3.606.450 |
|
3 |
Dây thép |
99,16 |
kg |
25.000 |
2.478.900 |
|
4 |
Đá 1x2 |
35,74 |
M3 |
190.000 |
6.790.600 |
|
5 |
Đá 4x6 |
2,45 |
M3 |
160.000 |
392.000 |
|
6 |
Đinh |
51,76 |
kg |
20.000 |
1.035.200 |
|
7 |
Gạch chỉ 6,5x10,5x22 |
19.000 |
Viên |
1.500 |
28.500.000 |
|
8 |
Thép tròn D<10 |
1.900 |
Tấn |
11.800 |
22.420.000 |
|
9 |
Thép tròn 10 |
1.100 |
Tấn |
11.800 |
12.980.000 |
|
10 |
Thép tròn D>18 |
1.800 |
Tấn |
11.800 |
21.240.000 |
|
11 |
Xi măng |
12.500 |
kg |
1.800 |
22.500.000 |
|
12 |
Đá trang trí |
19,15 |
M2 |
550.000 |
10.532.500 |
|
13 |
Gạch lát nền, ốp vs |
111,23 |
M2 |
250.000 |
27.807.500 |
|
14 |
Cầu thang |
11 |
m |
3.500.000 |
38.500.000 |
|
15 |
Ngói |
1.650 |
Viên |
6.500 |
10.725.000 |
|
16 |
Ngói bò |
33 |
Viên |
9.000 |
297.000 |
|
17 |
Sơn lót |
95,03 |
M2 |
90.000 |
8.552.700 |
|
18 |
Sơn phủ |
179,52 |
M2 |
75.000 |
13.464.000 |
|
19 |
Xi măng trắng |
24 |
kg |
3.000 |
72.000 |
|
TT |
Đồ nội thất |
Thành tiền (VNĐ) |
|||
|
1 |
Hệ thống toilet và lavabo |
10.000.000 |
|||
|
2 |
Hệ thống cửa sắt |
20.000.000 |
|||
|
3 |
Cửa gỗ và cửa nhôm |
75.000.000 |
|||
|
4 |
Đèn chiếu sáng |
5.000.000 |
|||
|
5 |
Giường |
15.000.000 |
|||
|
6 |
Tủ âm tường |
30.000.000 |
|||
|
7 |
Tủ bếp |
30.000.000 |
|||
|
8 |
Salon phòng khách |
30.000.000 |
|||
|
9 |
Rèm cửa |
8.000.000 |
|||
Lưu ý: Bảng tính vật tư chi tiết xây nhà 2 tầng 50m2 trên đây của chúng tôi chỉ mang tính chất tương đối, cơ bản. Tùy thuộc vào một số yếu tố cũng như vị trí xây mà sẽ có sự chênh lệch khác nhau.
4 + Mẫu Bản vẽ nhà 2 tầng hoàn chỉnh và chi tiết nhất
Thiết kế nhà 2 tầng hiện đại ngày nay được nhiều gia đình ở nông thôn, thành phố lựa chọn. Đây là một trong những loại hình thiết kế nhà khá phổ biến, không quá cao, đáp ứng công năng sử dụng của nhiều gia đình Việt hiện nay.
Cùng chúng tôi tham khảo một số bản vẽ thiết kế nhà 2 tầng hoàn chỉnh giúp các gia chủ có thể lên ý tưởng thiết kế nhà đẹp cho gia đình mình ấn tượng nhất. Với 40 Bản vẽ nhà 2 tầng hoàn chỉnh và chi tiết nhất chắn hẳn bạn sẽ tìm được một mẫu nhà trong mơ của mình.
1. Bản vẽ thiết kế nhà ống 2 tầng 3 phòng ngủ 54m2
Bản vẽ nhà ống 2 tầng 3 phòng ngủ 54m2 này được thiết kế dành cho gia đình, có 3 thế hệ bố mẹ, vợ chồng, và 2 con.
Bản vẽ nhà ống 2 tầng 3 phòng ngủ với diện tích xây dựng 54m2, với kinh phí dự khoảng 650 – 700 triệu đồng, thiết kế nhà ống 2 tầng 3 phòng ngủ lợp mái tôn là một trong những phương án tối ưu phù hợp với nhiều gia đình hiện nay.
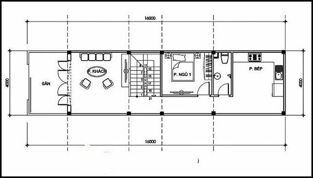
Bản vẽ mặt bằng tầng 1 nhà ống 2 tầng 3 phòng ngủ 54m2
Tầng 1 của bản vẽ nhà ống 2 tầng 3 phòng ngủ diện tích 54m2 này gồm phòng khách, phòng ngủ và bếp cùng 1 nhà vệ sinh dùng chung phía cuối nhà. Phía trước nhà kiến trúc sư để một khoảng sân với diện tích 2,5m2 làm chỗ để xe máy và một góc nho nhỏ thiết kế tiểu cảnh. Sân trước được bố trí làm khu vực phơi quần áo luôn. Tiếp theo là không gian phòng khách 12m2.

Bản vẽ mặt bằng tầng 1 nhà ống 2 tầng 3 phòng ngủ 54m2
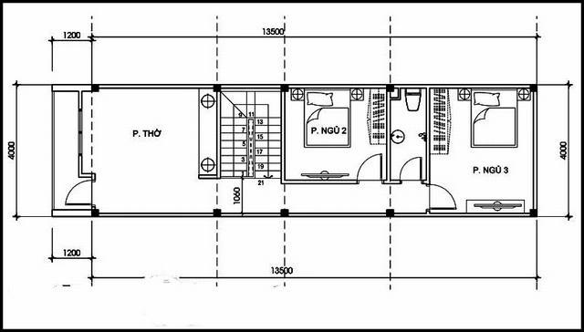
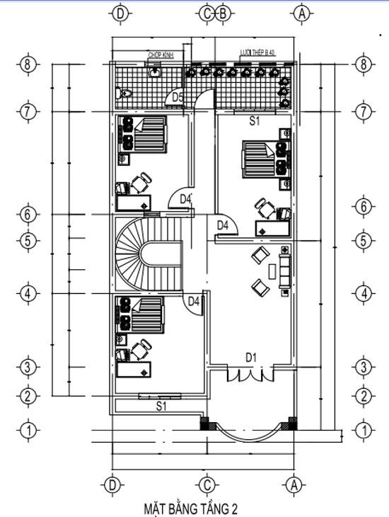
Bản vẽ mặt bằng tầng 2 mẫu nhà ống 2 tầng 3 phòng ngủ 54m2
Công năng sử dụng mặt bằng tầng 2 gồm 1 phòng thờ kết hợp phòng đọc sách. Phía sau cầu thang là 2 phòng ngủ cho vợ chồng và con của anh Hùng. 2 phòng ngủ này dùng chung nhà vệ sinh.

Thiết kế mặt bằng mái tôn bản vẽ nhà ống 2 tầng 3 phòng ngủ 54m2

Thiết kế mặt bằng mái tôn bản vẽ nhà ống 2 tầng 3 phòng ngủ 54m2
2. Bản vẽ thiết kế nhà 2 tầng 5×20
Tham khảo bản vẽ thiết kế nhà ống 2 tầng 5×20 với cách phân chia, bố trí công năng diện tích sử dụng. Tùy thuộc theo từng thành viên gia đình, điều kiện kinh tế, mà từ đó đưa ra những phương án, tỉ lệ các phòng sao cho phù hợp với nhu cầu sử dụng nhằm góp phần đưa đến không gian sống thoải mái.

Mẫu bản vẽ nhà 2 tầng 5×20 được bố trí khá hợp lý, khi chiều sâu của ô đất là 20m, kiến trúc sư đã biến nhược thành ưu điểm,khi sử dụng 3m chiều dài để thiết kế sân trước kết hợp với việc trang trí tiểu cảnh 2 bên để giúp mặt tiền của ngôi nhà thêm thu hút với cảnh quan bắt mắt.
Tiếp giáp sân trước là 5m được dành riêng để thiết kế nhà xe cho các thành viên, không gian chính đầu tiên chính là phòng khách hiện đại, được ngăn cách với nhà xe bằng hệ thống cửa mở trượt cao cấp, giúp ngăn mùi xe mà vẫn đảm bảo không gian với ánh sáng cho ngôi nhà 2 tầng.
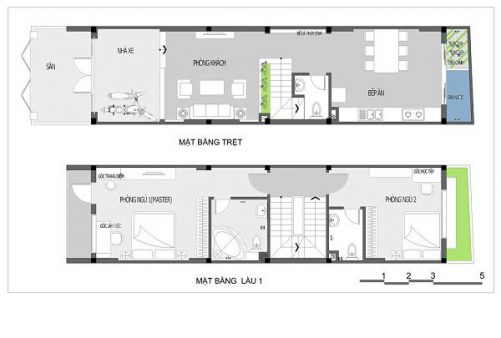
Tầng 1của ngôi nhà được bố trí gồm thiết kế sân trước, nhà xe, phòng khách, bếp, nhà vệ sinh chung, sân nước sau kết hợp với hệ thống giếng trời

Tầng 2 bản vẽ nhà 2 tầng 5×20 được thiết kế dành riêng cho không gian sinh hoạt và nghỉ ngơi của các thành viên. Phòng ngủ chính được thiết kế rộng 25m, có nhà vệ sinh khép kín với trang bị nội thất cao cấp và đầy đủ như bồn tắm, lavabo, bồn cầu, từ phòng ngủ chính có lối ra ban công trên tầng 2 để ngắm cảnh và đón thoáng cho căn phòng.
3. Bản vẽ nhà 2 tầng mái thái 80m2
Nhà 2 tầng mái thái là một trong những mẫu nhà được sử dụng rộng rãi hiện nay. Mẫu thiết kế này thường được ưa chuộng ở những vùng nông thôn. Nếu bạn đang có ý định xây dựng một căn nhà 2 tầng mái thái thì có thể tham khảo bản vẽ chi tiết sau đây:

Diện tích xây dựng của mẫu nhà 2 tầng này là 7x12m và được chia đôi một bên là phòng ngủ, 1 bên là phòng khách được thiết kế dưới dạng mái thái và phía sau nhà được thiết kế cách ra 2 mét để lấy sáng và mở cửa phụ đi ra bên ngoài.
– Diện tích 1 sàn: 80m2
– Tổng diện tích sàn: 160m2
– Giá xây dựng: 650 – 800 triệu
– Diện tích đất: 7x12m

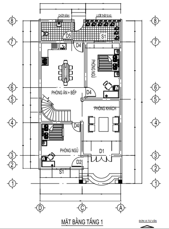
Bản vẽ chi tiết mặt bằng tầng 1 được bố trí với 1 phòng khách, 2 phòng ngủ, 1 phòng bếp + ăn và 1 phòng vệ sinh chung.

Bản vẽ chi tiết mặt bằng tầng 2 được bố trí 3 phòng ngủ và 1 phòng vệ sinh chung cho cả gia đình bạn

4. Bản vẽ nhà 2 ống 2 tầng 5×15
Những mẫu thiết kế nhà 2 tầng 5×15 m nhà ống có ưu điểm là có khoảng mặt tiền khá rộng, chiều dài tương đối, tạo cho tổng thể ngôi nhà rất rộng rãi thoáng mát lại có thể lắp thêm cổng sắt và sân để xe tiện lợi.

Mẫu thiết kế này hiện này phù hợp với các gia đình ở diện tích nhỏ hẹp. Mẫu thiết kế này tuy đơn giản nhưng không kém phần nổi bật nếu bạn yêu thích mẫu nhà này thì hãy tham khảo ngay bản vẽ chi tiết sau đây:
Bản vẽ chi tiết mặt cắt các tầng của mẫu nhà ống 2 tầng 5x15m

Mẫu thiết kế nhà ống 2 tầng 5x15m tầng bao gồm: 1 phòng khách, 1 phòng bếp, 1 WC, 1 phòng ngủ và sân phơi nhỏ ở phía trong cùng căn phòng.
Bản vẽ chi tiết yầng 2 có 2 phòng ngủ nằm về hai bên tầng, mỗi phòng đều có 1 nhà vệ sinh riêng, 1 phòng sinh hoạt chung và 1 phòng làm việc.
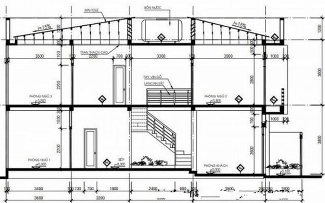
Bản vẽ chi tiết phần mái của mẫu nhà ống 2 tầng 5x15m được lợp bằng mái tôn và làm trần thạch cao. Phía bên dưới chống nóng và chống ồn mà lại giúp tiết kiệm chi phí.
5. Bản vẽ nhà ống 2 tầng 4x15m
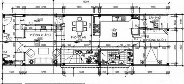
Bản vẽ mặt bằng nhà ống đẹp 2 tầng diện tích 4x15m 1 mặt tiền, thoáng hậu có thể mở cửa sổ. Công trình này bao gồm: Tầng 1 – Khu vực dùng để xe, phòng khách, không gian đệm cầu thang cùng với nhà vệ sinh chung, phòng bếp ăn.
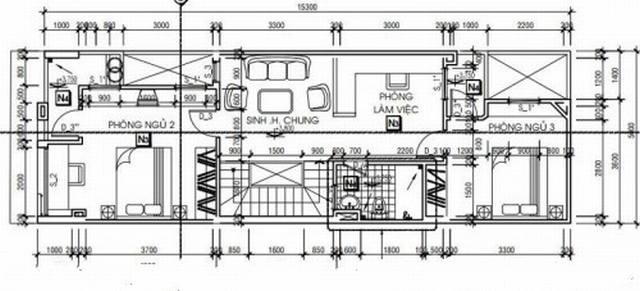
Tầng 2 – Có cấu trúc thang lệch tầng, khi đi lên trên là không gian phòng ngủ phía sau nhà kết hợp phòng vệ sinh riêng, tiếp tục sẽ là khu vực phòng SHC, 1 phòng ngủ phía trước nhà và phòng vệ sinh riêng, còn có giếng trời giúp thông tầng ở giữa nhằm đảm bảo ổn định lưu thông ánh sáng, không khí.
Hãy chiêm ngưỡng thêm các mẫu cửa nhôm hệ Xingfa để lắp đặt cho hệ thống cửa cho ngôi nhà bạn

Kinh nghiệm xây nhà 2 tầng ở Hà Nội
Havaco Việt Nam xin giới thiệu đến bạn xây nhà bằng kính cường lực, sử dụng vách ngăn kính. Kính cường lực là vật dụng rất phổ biến trong cuộc sống mang nhiều ưu điểm và tính năng vượt trội nên có sử đáp ứng được tất cả các yêu cầu của người dùng.Có thể sử dụng làm cửa đi tại các đại sảnh, hay cho các cửa thông phòng, làm vách ngăn, mái kính cầu thang kính, tường bao kính,… đây là vật liệu phổ biến dễ thi công, ứng dụng đa dạng tiết kiệm thời gian, công sức và chi phí cho gia chủ. Đồng thời các mẫu nhà kính mang đến sự độc đáo trong phong cách thiết kế và phát huy tối đa sự sáng tạo của các gia chủ trong việc trang trí.
Kính hộp, kính cường lực cho trường bao đảm bảo an toàn cho người dùng, kết hợp thêm hệ thống rèm giúp tạo không gian riêng tư cho căn nhà và điều chỉnh được lượng ánh sáng phù hợp, rất đa dạng và linh hoạt trong thiết kế.
Chúng tôi – Havaco Việt Nam chuyên sản xuất và thi công các sản phẩm nhôm kính, kính cường lực, cửa nhựa lõi thép,… với chất lượng cao giá thành cạnh tranh, đảm bảo mang đến không gian an toàn, sang trọng và tiện nghi cho khách hàng. Hãy liên hệ với chúng tôi qua số holite của công ty để được tư vấn cụ thể và chi tiết hơn.


